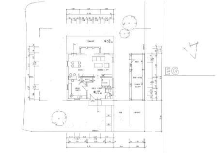
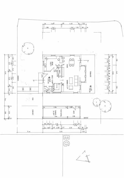
Neubau Enderich
Kopfzeilenbild  
Architekt Conradi  
  [ index ]   [ Projekte ]   [ Kontakt ]   [ Impressum ]
 
 

Neubau eines Einfamilienhauses